脚を伸ばしてお風呂に入りたい・・そんなご要望のS様。増築などで費用をかけずに実現させました。
BIFORE
AFTER
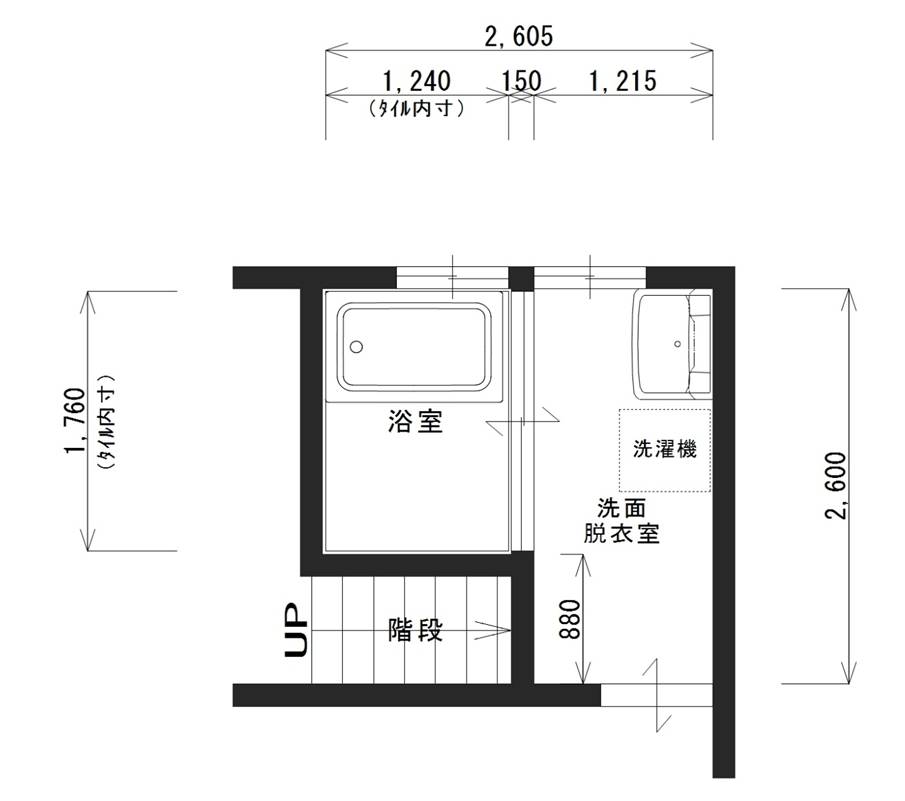
図のように元々間口が狭く奥行きのある洗面所の壁に洗面ユニットと洗濯機が設置されてました。今回のリフォームでは浴室を広くしたいというお客様のご要望にお応えしなければなりませんが、増築には費用がかかるため思い切って洗面所側に間仕切りをせり出させて浴室を広くしました。洗面ユニットは突き当たりの壁へ設置し、洗濯機は洗面所の壁を破り階段下のデッドスペースを利用し設置をしました。今まで洗面や洗濯機の背中側が狭く使い勝手が悪かったのですが、今回のリフォームで洗面所スペースとしては狭くなりましたが、洗面ユニットや洗濯機の背中側は広く利用ができるようになりました。現在写真の洗濯機はドラム型の洗濯機に変わっています。








